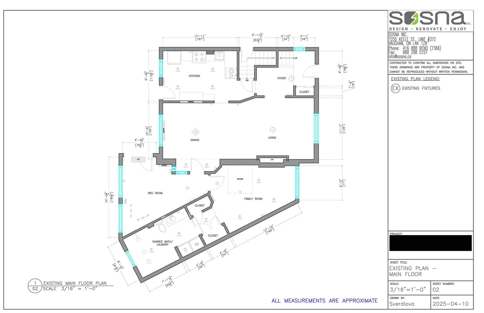
For years, this family felt like their main floor was working against them instead of with them. Two things were at the heart of it. The kitchen was a tight galley where only one person could comfortably stand at a time, which made cooking together feel more frustrating than fun. On top of that, there was an old addition that never quite made sense. It felt awkward and disconnected, like it belonged to a different house altogether. No matter how they tried to live in the space, the layout did not support their everyday life.
Renovation Details:
- Total Remodel Cost:
- Design Timeline:
- 2 Months: February 25, 2025 – April 20-2025
- Construction Timeline:
- 3 Months: June 3, 2025 – September 15, 2025
- Designer: Olga Sverdlova
- Project Manager: Roman Tchaban
- Pre-Renovation Drawings:
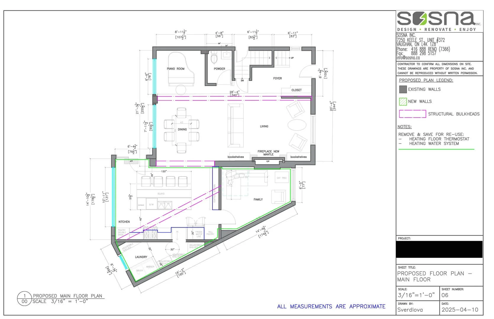
- Proposed Renovation Drawings:


Rethinking What They Already Had
They originally believed the only solution was a large and expensive addition. When we first sat down together, the focus was on how the home made them feel. We talked through the cramped kitchen, the unused areas, and the lack of storage. After walking through the space and completing a feasibility study, we uncovered something unexpected. The square footage was already there. It just needed a better plan.
BEFORE:





Designing a Main Floor That Makes Sense
The design phase reimagined how the home works day to day. The kitchen became a bright, open hub with a generous island where cooking, homework, and family time happen naturally. Spaces that once felt awkward were given clear and useful purposes. To open up the main floor, a long steel span was carefully planned to replace an exterior wall that could not carry the load. This step was essential in creating a safe and open layout.
Details That Make It Personal
Throughout the design, we made sure the house reflected the family. One request was a custom basement door with a built-in cat door. It is practical, charming, and very much their style. That sense of personality carries through in touches like cat-shaped handles in the laundry room. Even the piano room was designed to feel warm and inviting while staying easy to live in.
A Home That Finally Flows
Today, the main floor works effortlessly. Multiple people can cook together comfortably. The rooms feel organized, welcoming, and connected. The previously awkward addition now feels intentional and fully part of the home. Daily life flows smoothly, from meals to music to family time. The house no longer fights them. It supports them and truly feels like home.















Hear Directly from the Happy Clients!
Hear from these wonderful clients about their Sosna Renovation experience here!
Ready to See What Your Home Can Be?
If there is a kitchen that does not work or a corner of your home that feels off, there may be more potential there than you realize. Sometimes the right solution is already within your walls. When you are ready, reach out and let’s explore what your home could become. Contact us to get started!
Author: Olga Sverdlova
1345 Views
