When Your Home Feels Like It’s Working Against You
Some homes start to feel like they are working against the people who live in them. That’s exactly how these clients felt. A couple in their mid-50s, with two young adult children, knew what they wanted their home to feel like, but time and busy schedules made it impossible to do it themselves.
One of the Clients loved working with tools and tackling projects, while the other brought a creative eye and a strong sense of style. Together they had the vision, but their bathrooms were holding them back. Every morning and evening reminded them that their home no longer fit their needs.




Renovation Details:
- Total Remodel Cost:
- Design Timeline:
- 1 Month: August 5, 2025 – September 17, 2025
- Construction Timeline:
- 1.5 Months: October 22, 2025 – December 11, 2025
- Designer:
- Project Manager:
- Pre-Renovation Drawings:
- Proposed Renovation Drawings:
- Proposed 3D Drawings:
The Bathrooms That No Longer Worked
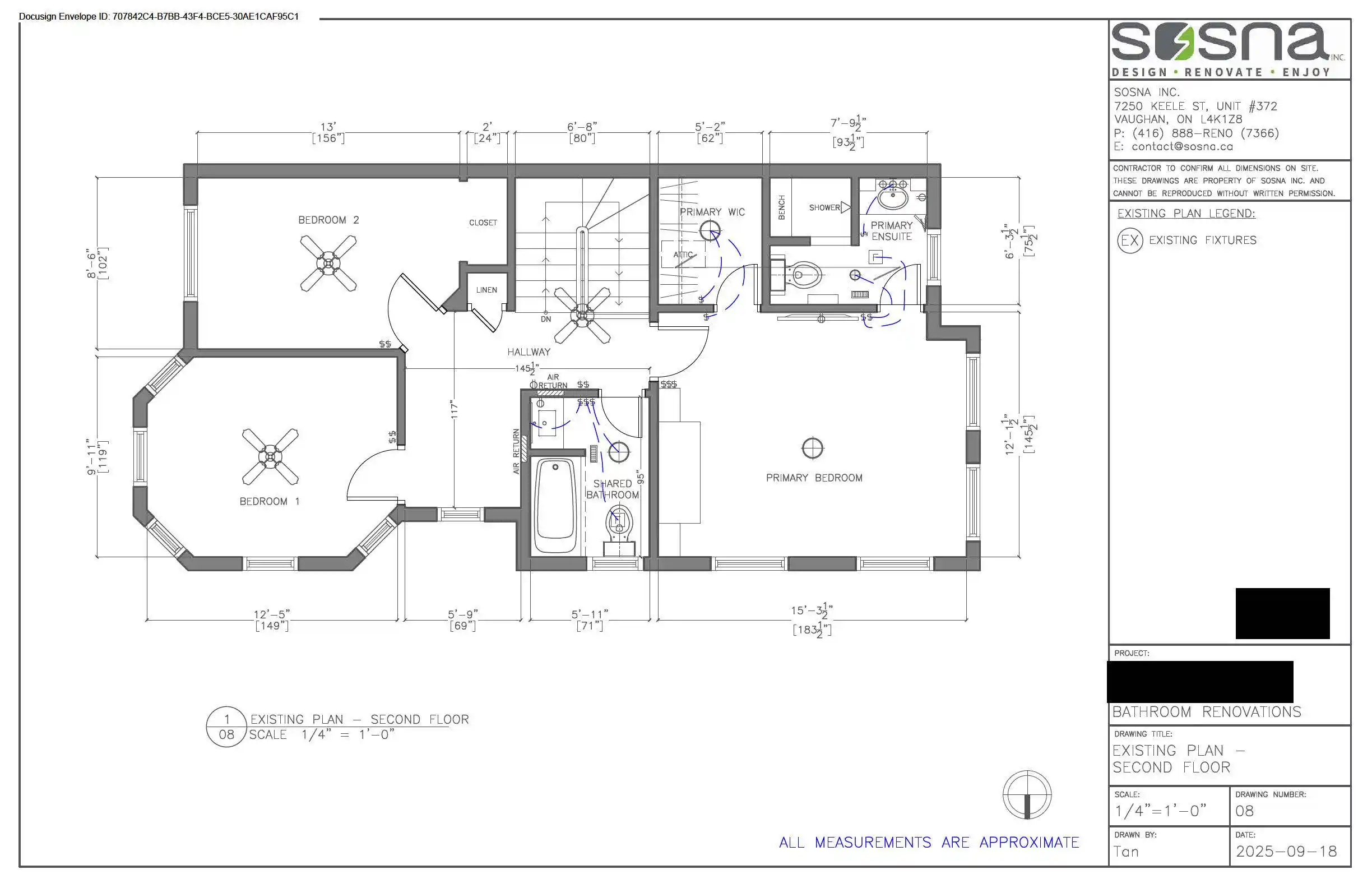
The Primary Ensuite had become a daily source of frustration. The shower was tight and uncomfortable, the vanity lacked storage and counterspace, and the Walk-In Closet sat mostly unused. The Clients felt cramped, annoyed, and sometimes embarrassed that such an important space was so inconvenient.
The Shared Bathroom had its own set of problems. The finishes around the tub were peeling, mold had started to form, and rust was creeping along the corner bead. It left the Clients feeling worried about their home and even embarrassed when guests came over. On top of that, ventilation in both bathrooms was not working properly, adding a lingering concern about moisture and long-term damage.
Worries About Renovating
The Clients were concerned about going over budget. They worried that the project would take longer or cost more than expected, which made the idea of a renovation feel stressful. They wanted a space that worked, but they also needed peace of mind that the plan would stay on track.
Finding Solutions That Finally Made Sense
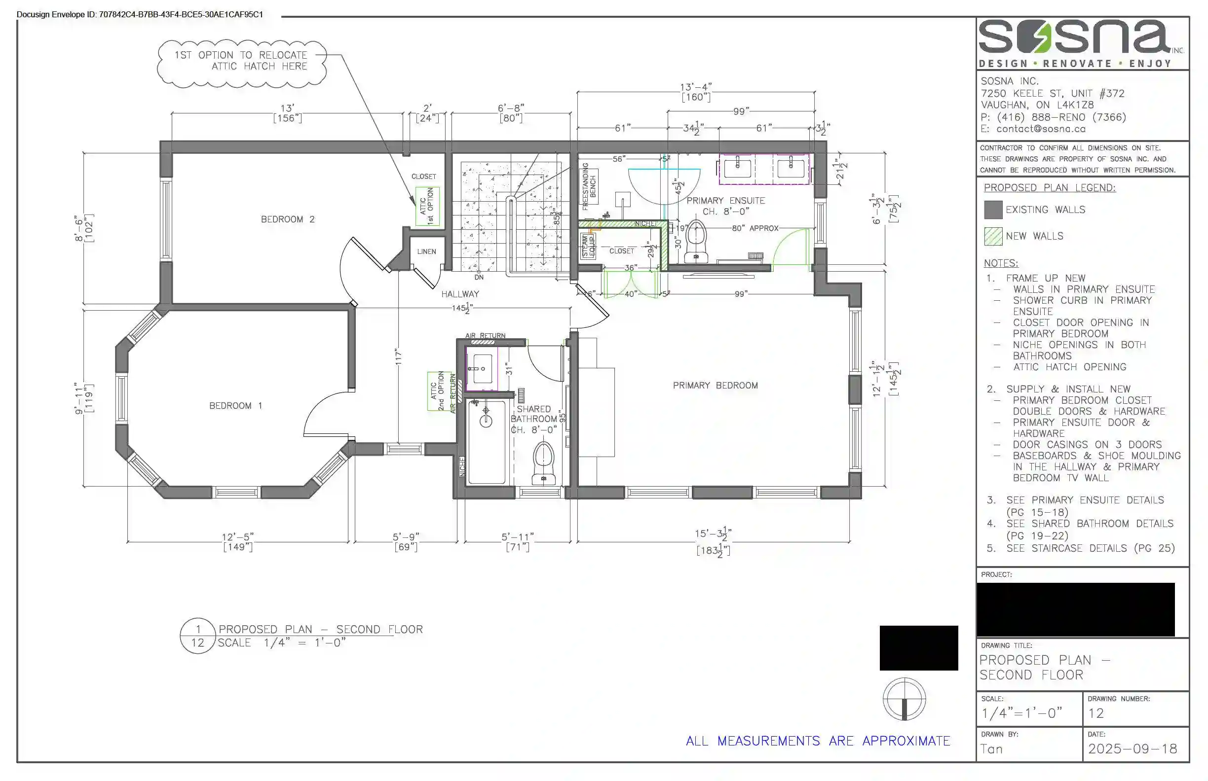
Primary Ensuite
The first step was to open up possibilities by removing the wall between the Ensuite and the Walk-In Closet. This allowed for a larger walk-in steam shower while still keeping enough closet space to store the steam equipment and personal items.
The vanity stayed in the same location, but it was replaced with a longer double vanity, providing plenty of storage and counterspace. The toilet remained in place but was rotated slightly to improve flow. The Clients were relieved to see a space that was both functional and relaxing.
Shared Bathroom
The layout of the Shared Bathroom remained the same, but every finish and fixture was updated. Mold, peeling paint, and rusting corners were fully addressed. The Clients could finally use the space without feeling embarrassed or worried about damage.
Both Bathrooms
New quiet exhaust fans with timer switches were installed in both bathrooms, ensuring proper ventilation and eliminating the ongoing concern about moisture and air quality.
Challenges Along the Way
Unexpected issues came up, as they often do in renovations. During demolition of the wall between the Ensuite and the Walk-In Closet, a plumbing stack was discovered exactly where the new double vanity was planned. This could have caused a major disruption, but the team quickly found a solution.
The stack was shifted closer to the wall and a new wall was built around it, extending behind the double vanity. It sticks out slightly, but it created a clean, functional surface and allowed the vanity to remain the focal point of the room. The Clients felt reassured that challenges could be solved without compromising the design.
The Finished Bathrooms
Both Bathrooms received large-format porcelain tiles, creating a cohesive and fresh look. The Shared Bathroom received a new prefabricated vanity, while the Primary Ensuite had a semi-prefabricated double vanity, combining practicality and style.
A mix of Brushed Nickel plumbing fixtures and Matte Black accessories added contrast and elegance. The walk-in steam shower was enclosed with custom frameless glass, treated for easy cleaning. Every detail was designed to make the Bathrooms feel clean, calm, and enjoyable to use.
Life After the Renovation
The Clients had waited a long time for this transformation. The Primary Ensuite, in particular, became a space where mornings and evenings could feel calm and relaxing. The walk-in steam shower made it possible to enjoy a spa-like experience at home.
The Shared Bathroom was no longer a source of embarrassment. New finishes and fixtures removed mold, peeling paint, and rust, making the space feel fresh and functional.
The renovation was completed on a clear timeline, which removed stress and uncertainty. What could have taken years if attempted by the Clients themselves was completed in about two months, allowing them to finally enjoy the home they had imagined.
Memorable Moments
Renovations are rarely perfect, and there were bumps along the way. Budget considerations and the hidden stack discovered during construction could have caused worry. But the Clients were open, communicative, and willing to collaborate.
Their trust made it possible to solve challenges without losing the vision. By the end, the experience became as rewarding as the result. The Bathrooms were no longer obstacles in their daily life, but spaces that made their home feel complete.





Hear Directly From The Happy Clients!
Hear from these wonderful clients about their Sosna Renovation experience here!
Let’s Get Started!
If you’ve been living with spaces that feel cramped, outdated, or just don’t work for your family, there’s more potential in your home than you might realize. Sometimes the solution is already within your walls. When you’re ready, reach out to Sosna and let’s explore how your home can truly support the way you live.
Contact us today and start imagining your space without limits.
Author: Camila Tan
469 Views





